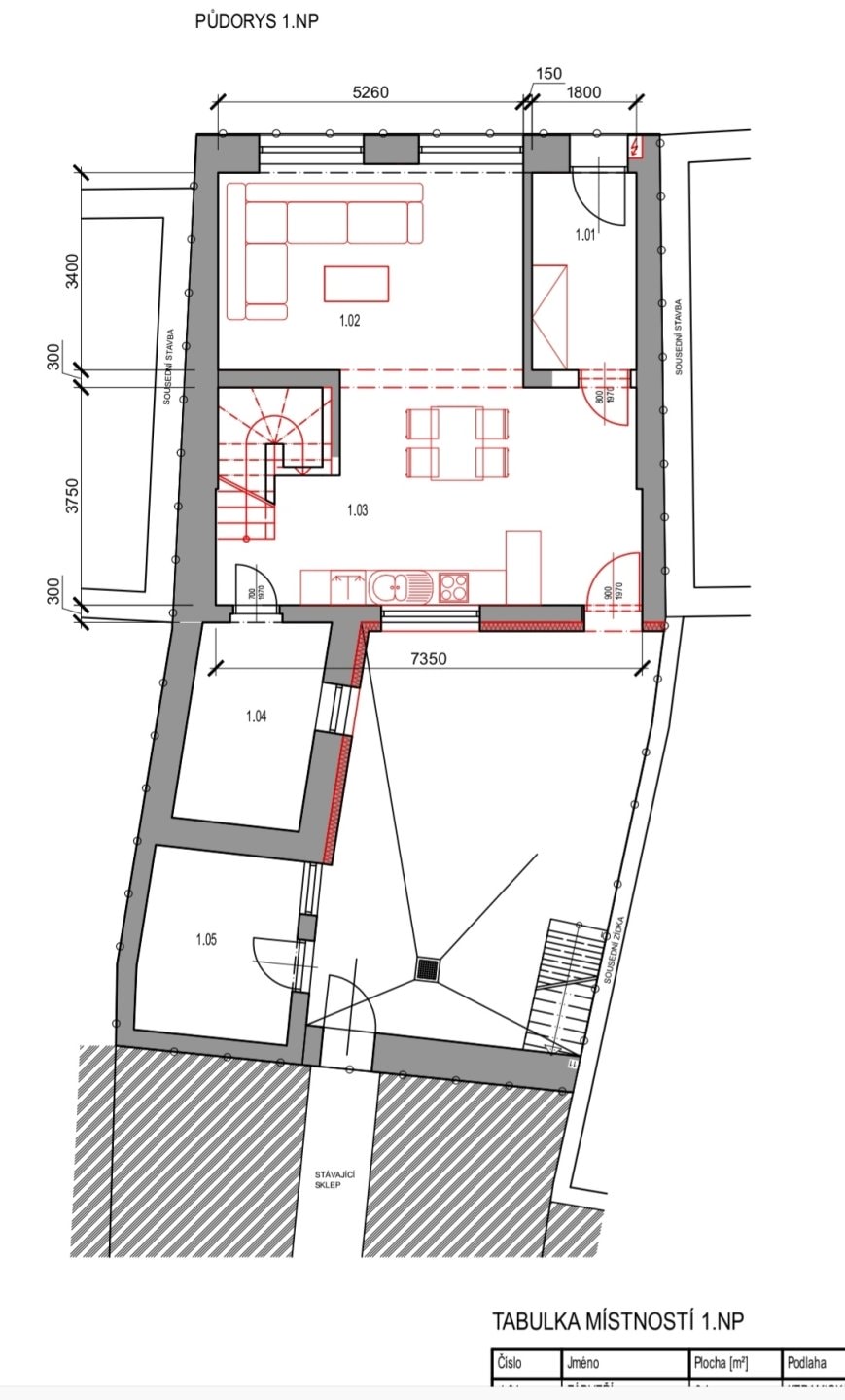
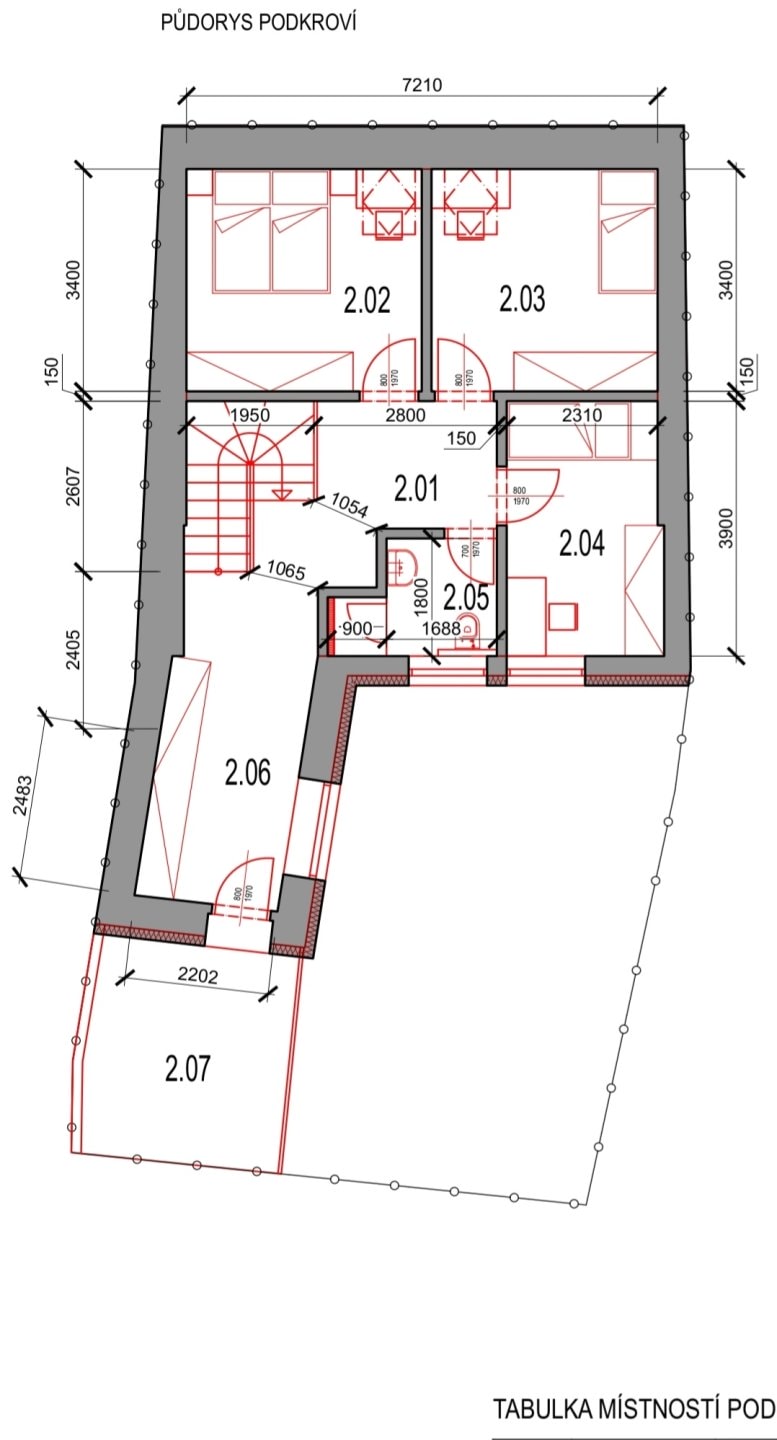
Nástavba a stavební úpravy RD - Podolí u Brna

Vyjádření klienta:


S  manželem jsme si najali paní inženýrku Procházkovou na realizování  projektu našeho malého domečku v Podolí u Brna, ze kterého nám pomohla  dostat neuvěřitelné maximum navzdory původním nedostatečným základům  domu, původním zdem z kotovice a hlavně požadavku nesrovnávat nemovitost  se zemí. 

Celá spolupráce proběhla tak, že jsme se na všem domlouvali a  pokud se nám zrovna nelíbilo umístění schodiště či návrh počtu pokojů v  patře, paní Procházková vypracovala nejméně jeden nový navrch, abychom  byli s konečným výsledkem maximálně spokojeni. Po schválení projektu nás  nečekalo žádné obíhání úřadu, ale vše zařídila za nás. 

Celá spolupráce tedy probíhala bez stresu a samotný projekt včetně vydaného stavebního  povolení proběhl bez zbytečných prodlev. Určitě doporučujeme 10/10.